Descrizione
Ampio Alloggio Caratteristico su due livelli e soppalco in Località Bathieu - LA THUILE -
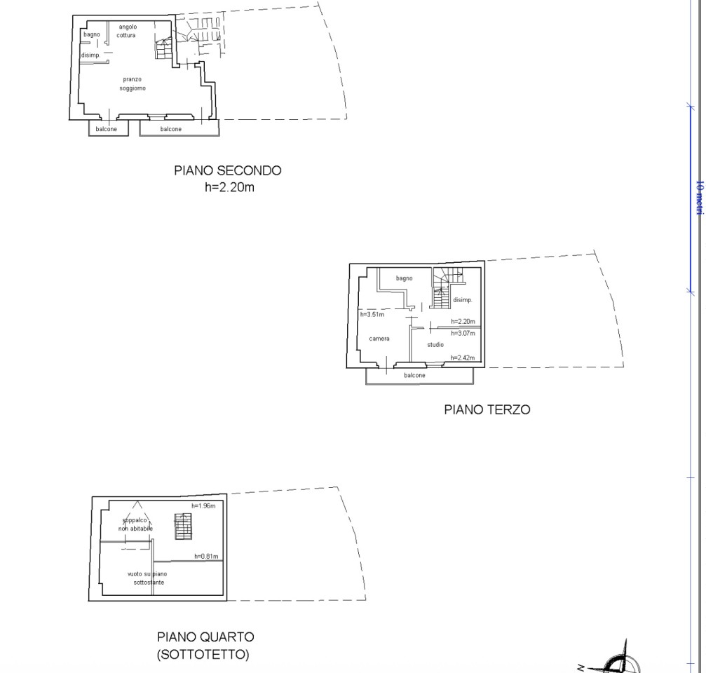
In Località Bathieu, a pochi passi da tutti i principali servizi commerciali e sportivi, proponiamo in vendita, frutto di un accurato recupero di un antico fabbricato completato nel 2006, un caratteristico alloggio a piano secondo disposto su due livelli con soppalco dotato di un luminoso abbaino.
L’immobile, con una superficie commerciale di circa 90 mq, si presenta in ottime condizioni e completamente arredato.
Composto a primo livello da:
- Luminoso soggiorno con zona pranzo
- Cucina a vista;
- Antibagno e bagno di servizio;
- Due balconi con ottima esposizione solare e vista panoramica
e a secondo livello da:
- Camera matrimoniale
- Camera con letto a castello
- Secondo bagno con doccia
- Balcone con ottima esposizione solare
a piano sottotetto da:
- Soppalco mansardato non abitabile con luminoso abbaino, organizzato come spazio aggiuntivo, angolo relax/zona notte.
Completano la proprietà:
- Cantina comoda per lo stivaggio di cose e sci
- Due box auto singoli ( a circa 50 mt. dalla casa)
Perfetto, pronto per essere vissuto sia come abitazione principale che come casa vacanze!
Questo alloggio rappresenta una soluzione ideale per chi cerca comfort, praticità e un tocco di charme in un contesto tranquillo e centrale, comodo ad ogni tipo di servizio commerciale e sportivo.
Contattaci prima possibile per organizzare una visita all’immobile, siamo sempre disponibili ogni giorno della settimana.
Dettagli immobile
-
Contratto:
Vendita -
Categoria immobile:
Trilocale -
Condizione immobile:
Buono/Abitabile -
Regione:
VALLE D'AOSTA -
Città:
LA THUILE -
Superficie:
90 mq² -
Locali:
3 -
Bagni:
2 -
Camere da letto:
2 -
Piano:
2° + 3° + soppalco -
Anno di costruzione:
2006 -
Riscaldamento:
Centralizzato -
Classe Efficienza energetica (EPgl):
G -
Indice Prestazione Energetica (IPE):
>175 kWh/m², anno -
Spese condominiali annue:
€ 1800 -
Prezzo di vendita:
€ 620000
Servizi interni
Servizi esterni
Distanze
-
Medico:
60 m -
Farmacia:
60 m -
Fermata navetta:
20 m -
Piazzale autobus:
60 m -
Ricarica auto elettriche:
60 m -
Benzinaio:
150 m -
Alimentari:
100 m -
Supermercato:
100 m -
Ristorante:
20 m -
Bar:
20 m -
Partenza funivia:
500 m -
Piste da fondo:
150 m
Planimetria - Progetto

Immobili simili
€420.000
VenditaBELLISSIMO VICINO FUNIVIA
Frazione Entrèves
- 1 Bagni
- 1 Camere da letto
- 54 Superficie
€360.000
VenditaGRAZIOSO CON AREA ESTERNA
frazione Petite Golette n.1
- 1 Bagni
- 1 Camere da letto
- 67 Superficie
€520.000
VenditaCARATTERISTICA MANSARDA
Frazione Petite Golette
- 1 Bagni
- 1 Camere da letto
- 91 Superficie
€640.000
VenditaVILLA INDIPENDENTE
FRAZIONE Faubourg LA THUILE
- 2 Bagni
- 1 Camere da letto
- 130 Superficie
italiano
english