Descrizione
Proponiamo in vendita un delizioso alloggio al piano terreno, impreziosito da un’ampia area esterna privata e situato in una posizione strategica, comoda sia agli impianti di risalita sia a tutti i principali servizi.
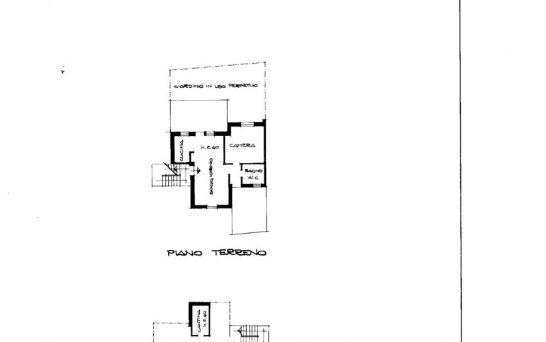
L’appartamento, curato e funzionale, è composto da:
- luminoso soggiorno con divano letto;
- cucina a vista completamente attrezzata;
- pratico disimpegno;
- confortevole camera matrimoniale;
- bagno finestrato con doccia.
L’unità gode di una doppia area esterna in totale di circa 60 mq, ideale per momenti di relax all’aperto.
Completano la proprietà una cantina, un comodo box auto e un parcheggio condominiale esterno a disposizione di fronte a casa.
Il riscaldamento è allacciato alla rete di teleriscaldamento, soluzione efficiente e comoda.
Il bilocale, in ottime condizioni interne, viene venduto completamente arredato, pronto per essere vissuto fin da subito.
Una proposta ideale per chi desidera un autentico rifugio alpino dedicato al relax e allo svago, ma anche per chi è alla ricerca di un investimento immobiliare conveniente e di facile gestione.
Contattaci per organizzare una visita, siamo a tua disposizione tutti i giorni della settimana per accompagnarti alla scoperta di questa piacevole soluzione.
Dettagli immobile
-
Contratto:
Vendita -
Categoria immobile:
Bilocale -
Condizione immobile:
Buono/Abitabile -
Regione:
VALLE D'AOSTA -
Città:
LA THUILE -
Superficie:
67 mq² -
Locali:
2 -
Bagni:
1 -
Camere da letto:
1 -
Piano:
TERRENO -
Anno di costruzione:
1980 -
Riscaldamento:
Centralizzato -
Classe Efficienza energetica (EPgl):
D -
Indice Prestazione Energetica (IPE):
144,76 kWh/m², anno -
Spese condominiali annue:
€ 1500 -
Prezzo di vendita:
€ 360000
Servizi interni
Servizi esterni
Distanze
-
Medico:
250 m -
Farmacia:
250 m -
Fermata navetta:
50 m -
Piazzale autobus:
250 m -
Ricarica auto elettriche:
100 m -
Benzinaio:
400 m -
Alimentari:
250 m -
Supermercato:
250 m -
Ristorante:
250 m -
Bar:
250 m -
Partenza funivia:
250 m -
Piste da fondo:
500 m
Planimetria - Progetto

Immobili simili
€230.000
VenditaOPEN SPACE CON SOPPALCO
FRAZIONE ARLY LA THUILE
- 1 Bagni
- 1 Camere da letto
- 44 Superficie
€420.000
VenditaAccogliente trilo in centro
VIA PAOLO DEBERNARD 20
- 2 Bagni
- 2 Camere da letto
- 80 Superficie
€280.000
VenditaDELIZIOSA MANSARDA OPEN SPACE
frazione petite Golette 1
- 1 Bagni
- - Camere da letto
- 50 Superficie
€520.000
VenditaCARATTERISTICA MANSARDA
Frazione Petite Golette
- 1 Bagni
- 1 Camere da letto
- 91 Superficie
italiano
english